38
$32 Rent
Listed 1 hour
120 GUELPH STREET
· 0
· 0.0
· 1
· 3600
Key Facts
Key facts for 120 GUELPH STREET
Property Type
Commercial
Parking
Garage: No, 1 parking
MLS #
W12451385
Size
3600 sqft
Basement
-
Listed on
-
Lot size
-
Tax
-
Days on Market
-
Year Built
-
Maintenance Fee
-
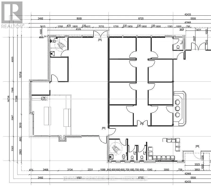
Description
Modern, Newer, & Chic Building with Main Street Exposure. Fully Divided and setup for a Pharmacy/Medical Clinic operation including Fully Equipped Exam Rooms (All equipment shown in photos is negotiable). Landlord is open to other uses. Other half of building currently occupied by a successful Denti...stry Clinic. Front and Back Entrances. Tons of Parking in the back plus lots of spots on Edward St (approved by the Town). T.M.I. **Including Utilities** estimated at $13 for 2025. (id:10452)
Similar Properties (No results)
Listing courtesy of: RE/MAX PREMIER INC.
This REALTOR.ca listing content is owned and licensed by REALTOR® members of The Canadian Real Estate Association.